連接點及生根點大樣圖
單管保溫側、縱向安裝示意圖
重型共架側向安裝示意圖
圓形風管側向安裝示意圖
圓形風管側·縱向安裝示意圖
雙層橋架側.縱向安裝示意圖
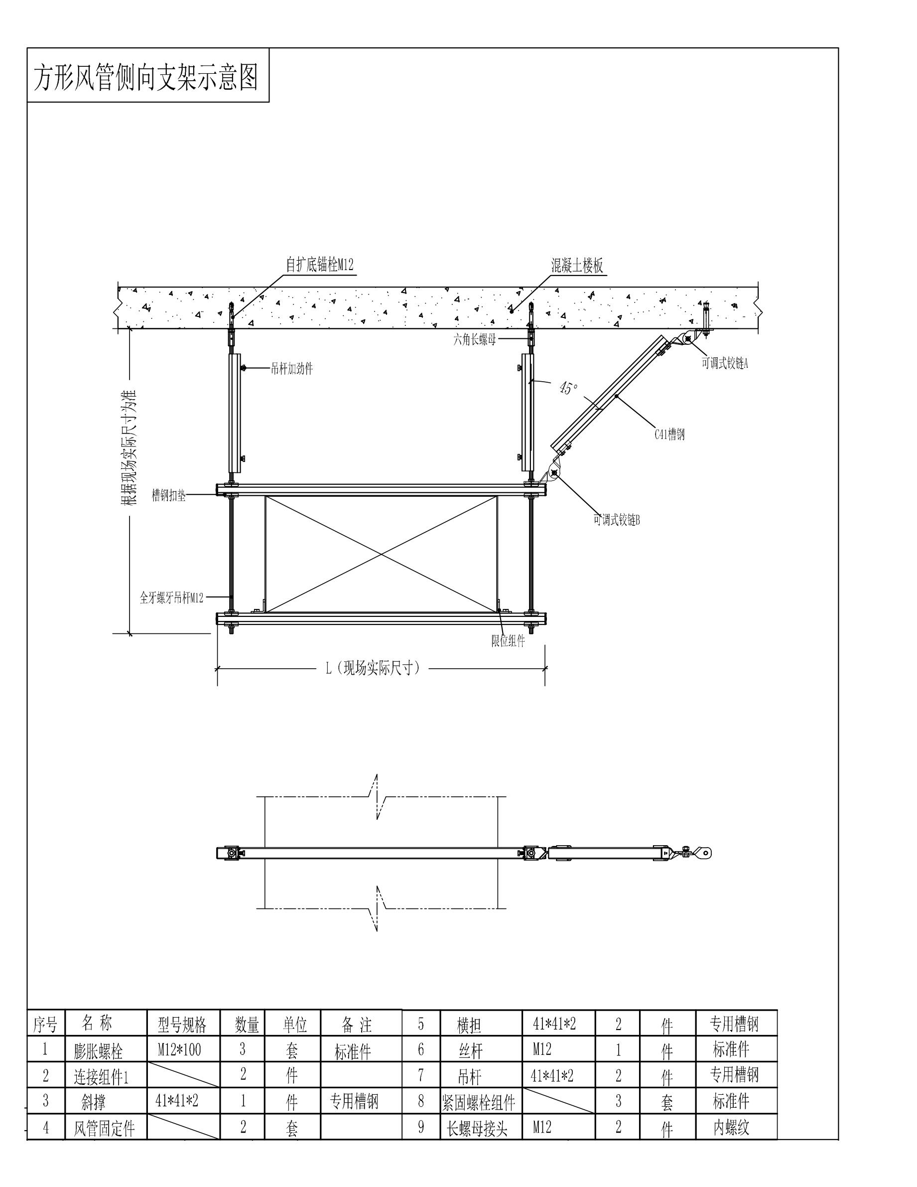
方形風管側向安裝示意圖
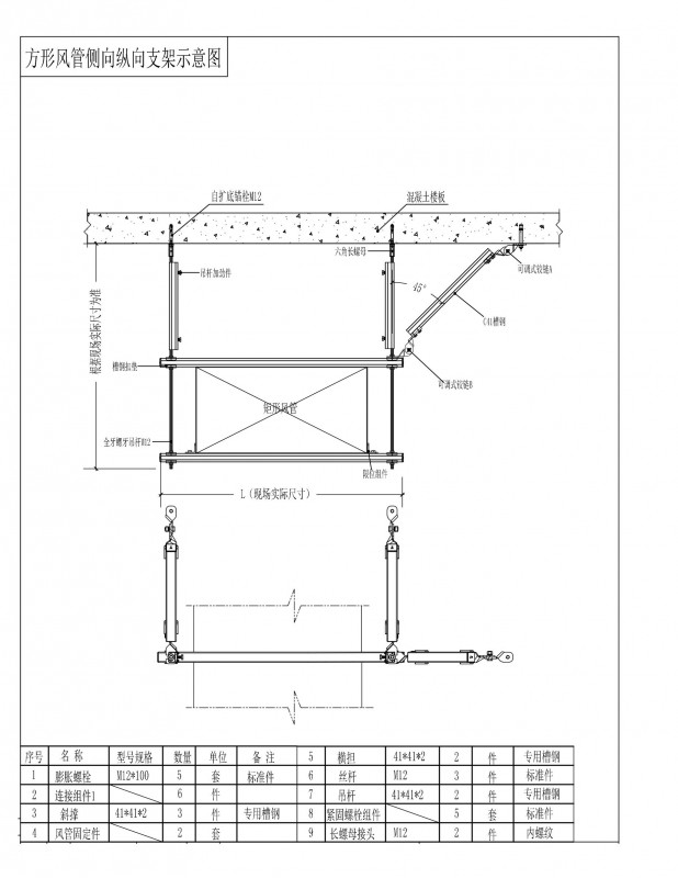
方形風管側、縱向安裝示意圖
聯系人:賈經理
手機:13366936563
郵箱:380903211@qq.com
地址: 北京海淀區馬甸南村一號院